In ruhiger Lage von Hamm-Rhynern entsteht ein modernes Doppelhausensemble, das zeitgemäßes Wohnen mit hoher Energieeffizienz verbindet. Die klar strukturierte Architektur fügt sich harmonisch in das gewachsene Wohnumfeld ein und schafft mit großen Fensterflächen und offenen Grundrissen ein helles, einladendes Raumgefühl.
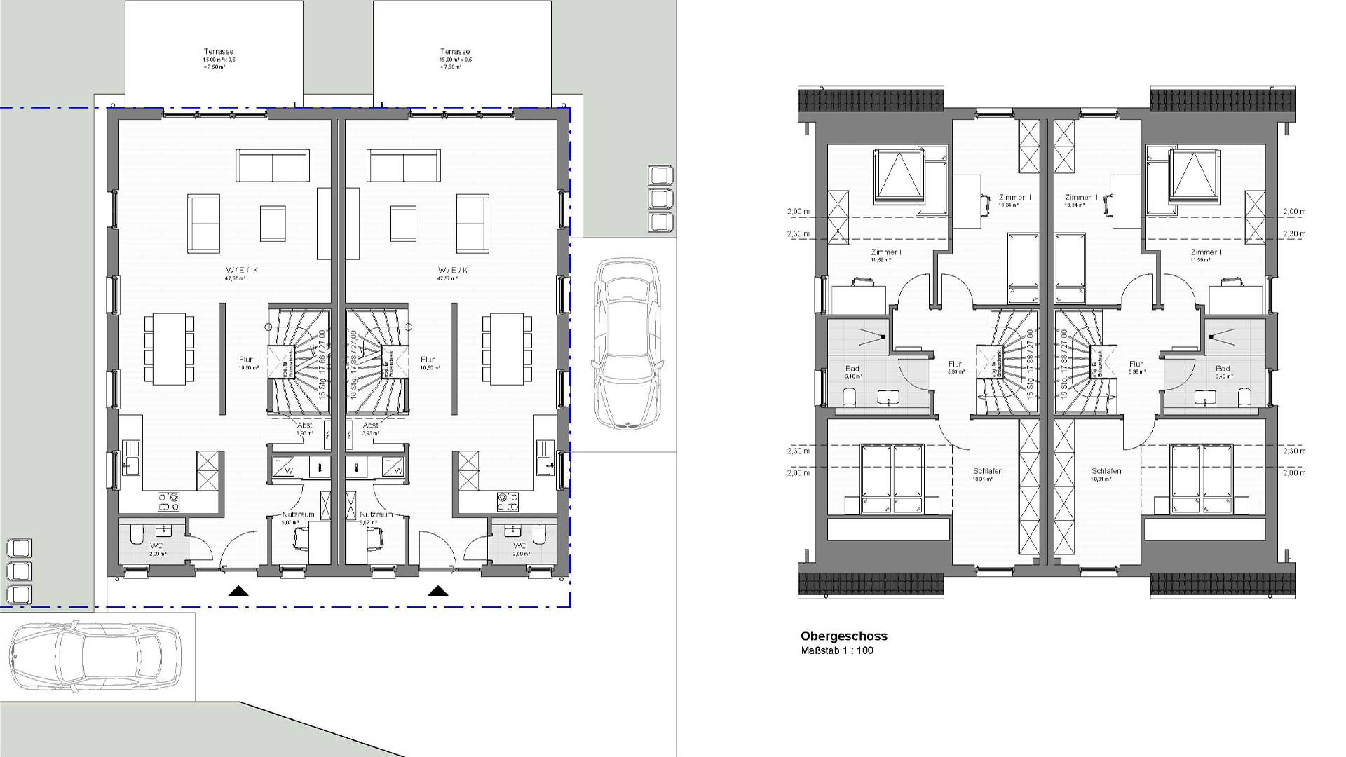
Jede der beiden Einheiten verfügt über rund 132 m² Wohnfläche auf zwei Ebenen. Das Erdgeschoss überzeugt mit einem großzügigen Wohn-, Ess- und Kochbereich, angrenzender Terrasse und praktischem Hauswirtschaftsraum. Im Obergeschoss befinden sich drei Schlafzimmer sowie ein komfortables Bad mit Tageslicht – ideal für Familien oder Paare mit Platzanspruch.
Die Grundstücke umfassen jeweils ca. 388 m² bzw. 264 m² und bieten ausreichend Raum für Garten, Spiel- oder Ruheflächen.
Mit durchdachten Grundrissen, hochwertiger Ausstattung und nachhaltiger Bauweise bietet dieses Projekt einen zukunftssicheren Wohnwert in attraktiver Lage von Hamm.






